Quadrilocale in vendita

Frattamaggiore, Via Pasquale Ianniello
€ 355.000
4 locali 4 locali
120 Mq 120 Mq
2 bagni 2 bagni

Quadrilocale in vendita

Frattamaggiore, Via Pasquale Ianniello

Descrizione annuncio

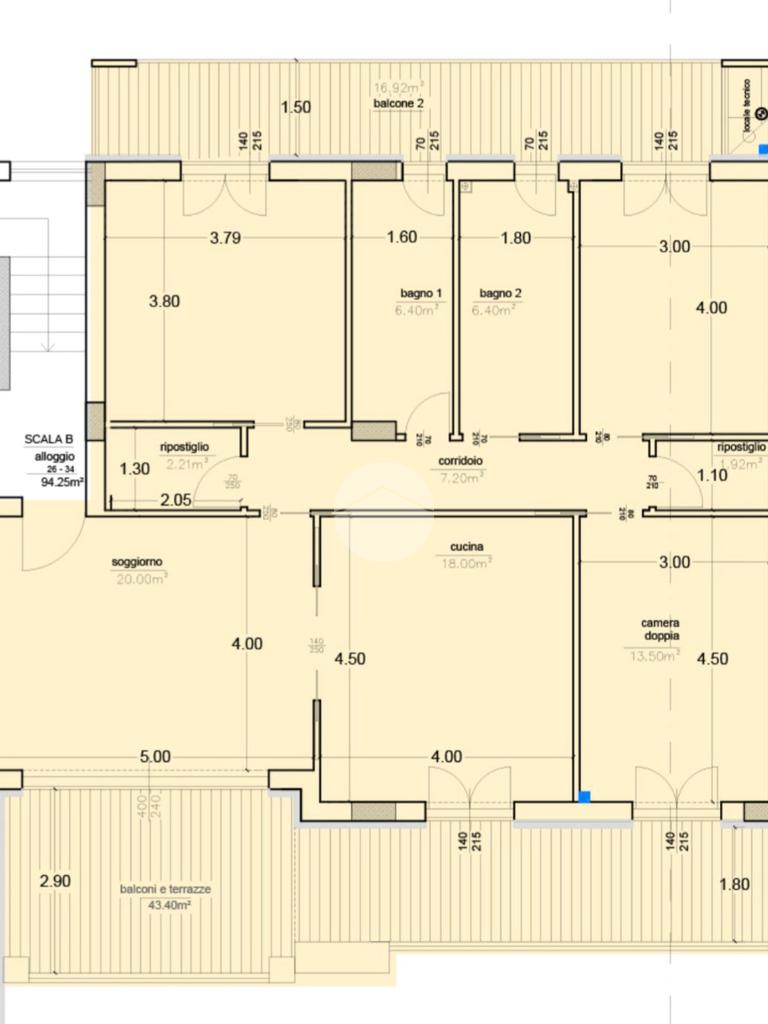
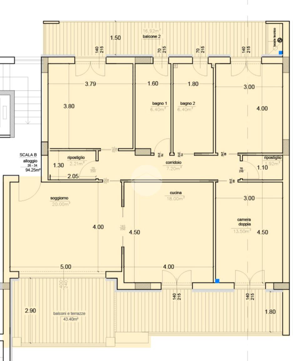
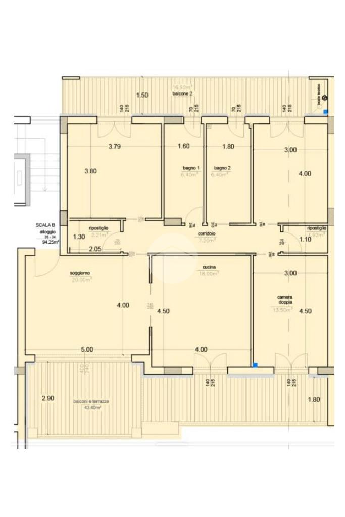
FABBRICATO IN CORSO DI COSTRUZIONE

In corso di costruzione con consegna prevista per la fine del 2026, proponiamo in vendita splendido appartamento di ultima generazione, sito al terzo piano con box auto doppio di esclusiva proprietà. L' appartamento sarà una perfetta pianta regolare con duplice esposizione. Dall'ingresso si accederà dritti nella zona giorno: salone e cucina saranno separati da una porta a scrigno; insieme formeranno una zona di circa 40 mq. Dal corridoio passeremo nella zona notte in cui ci saranno ben tre camere da letto, due bagni finestrati e doppio ripostiglio. Ovviamente non può mancare un bel terrazzo nella zona giorno che si collega con il balcone che abbraccia una camera. Le altre camere avranno un secondo balcone con affaccio interno cortile. Al piano seminterrato verrà abbinato all'immobile un box auto per due auto. L' immobile sarà munito di: cappotto termico, infissi a taglio termico e sonoro, avvolgibili con sistema di antintrusione, impianto di riscaldamento autonomo con caldaia a condensazione ed impianto di condizionamento. L'intero parco sarà poi abbellito con zone verdi formate da piante di piccole e medie dimensioni così da creare una zona confort distante dal caos cittadino! Chiamaci per fissare un appuntamento in ufficio e ricevere maggiori informazioni.

Mostra tutto

Nelle vicinanze

Trasporto pubblico Trasporto pubblico
Frattamaggiore-Grumo Nevano
Frattamaggiore-Grumo Nevano
1,3 Km
Sant'Antimo-Sant'Arpino
Sant'Antimo-Sant'Arpino
2,6 Km
Ricariche auto elettriche Ricariche auto elettriche
Stazione Frattamaggiore - Grumo Nevano | EnelX
1,4 Km
Scuole Scuole
Istituto Nuovo Polo Scolastico Anselmo D'Aosta
320 m
Succursale Enrico Fermi
690 m
Istituto Comprensivo Giuseppe Mazzini
780 m
Istituto Comprensivo Bartolomeo Capasso
840 m
Istituto Scolastico di Istruzione Superiore "Gaetano Filangieri"
940 m
Farmacia Farmacia
Farmacia Manna
140 m
Farmacia
1,6 Km
Farmacia D'Amore
2,6 Km
Farmacia Vivo
3,0 Km
Ospedali Ospedali
Ospedale Civile di Frattamaggiore "San Giovanni di Dio"
620 m
Supermercati Supermercati
Supermercati
300 m
Conad
730 m
ilCentro Superstore
760 m
MD
990 m
Sole365
1,1 Km
Negozi Negozi
OVS
440 m
United Colors of Benetton
620 m
Officine Nazzaro 1951
1,1 Km
Il Mercatone
1,6 Km
La Cremiere
2,6 Km
Bar Bar
Pacilio Caffetteria
150 m
Bar Dante
580 m
Bar Gallo
990 m
Bar Mele
1,0 Km
Bar della Stazione
1,3 Km
Ristoranti Ristoranti
Sapureat
660 m
Ristoranti
760 m
Antica Pizzeria Frattese
820 m
PalaPizza
840 m
Anema e Pizza
1,2 Km
Mostra tutto

Caratteristiche

Rif.:
61129877
Piano:
3 di 4 con ascensore (Piano alto)
Box:
1
Balconi:
2
Terrazzi:
1
Camere da letto:
3
Mostra tutto
Prezzo Prezzo
€ 355.000
Rata mutuo Rata mutuo
€ 1.673 / mese
Spese annue Spese annue
€ 1
Proponi il tuo prezzoProponi il tuo prezzo
Immobile valutato con T·Valuta

Classe Energetica

A2
A2
A2
A2
A2
A2
A2
A2
A2
EP globale non rinnovabile:
38.17 kW h/m² anno
EP globale rinnovabile:
10.83 kW h/m² anno
EP invernale del fabbricato:
EP estiva del fabbricato:
Anno di costruzione:
2025
Riscaldamento:
Autonomo
Tipo impianto:
A radiatori
Tipo alimentazione:
Metano

Ti interessa visionare l'immobile?

Fissa un appuntamento  Fissa un appuntamento

Richiedi informazioni

Clicca su Leggi per aprire l'informativa
* Questi campi sono obbligatori

Calcola il tuo mutuo

Semplice e senza impegno
Anticipo

( % )
Mutuo

( % )

pochi semplici passi

inserisci i tuoi dati
Questionario completato
Grazie per aver richiesto un appuntamento senza impegno con un nostro Consulente del Credito e Assicurativo.

Hai inserito correttamente tutti i dati necessari e a breve riceverai una e-mail con un link da convalidare per inviare i tuoi dati.
Affiliato
Consulenze Immobiliari Srlu
Via Roma, 145 80027 Frattamaggiore (NA)

Il nostro staff


  • Lorenzo Russo
    Collaboratore

  • Fabio Milo
    Affiliato

  • Alessia Natale
    Coordinatrice

  • Michele Savarese
    Responsabile
Via Roma, 145 80027 Frattamaggiore (NA)
Zona: Frattamaggiore
Mostra su mappa
Orari: dal lunedì al venerdì 9.00-13.00 - 15.30-20.30; sabato 9.00-13.00 - 16.30-19.30; domenica 10.30-13.00
Affiliato
Consulenze Immobiliari Srlu
Via Roma, 145 80027 Frattamaggiore (NA)

2026 Tecnocasa Franchising S.p.A. - P. IVA 08365160152 - Via Monte Bianco 60/A 20089 Rozzano (MI). Ogni agenzia ha un proprio titolare ed è autonoma. Privacy policy | Policy utilizzo | Cookie policy